杭州
关闭
C
成都
H
合肥
杭州
N
南京
S
深圳
苏州
上海
Z
重庆
首页
新房
问答
资讯
登录
/
注册
您的位置:
首页
>
新房
>
新城悦隽盛世
>
户型详细
新城悦隽盛世
在售
洋房
品牌楼盘
装修交付
关注楼盘
首页
楼盘动态
在售户型
用户问答
楼盘相册
楼栋信息
楼盘详情
楼盘点评
周边配套
全部(
0
)
2室(
4
)
3室(
1
)
←
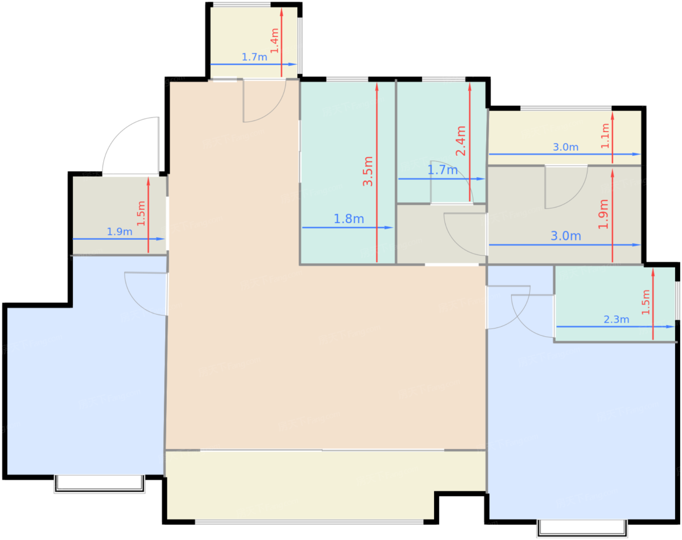
2室2厅2卫
95.00㎡
2室2厅2卫
104.00㎡
2室2厅2卫
112.00㎡
2室2厅2卫
125.00㎡
3室2厅2卫
135.00㎡
→
均价:
8870
元/㎡
售价:
65535
万
朝向:
居室:
2室2厅1厨2卫
面积:
125.00㎡
购房热线